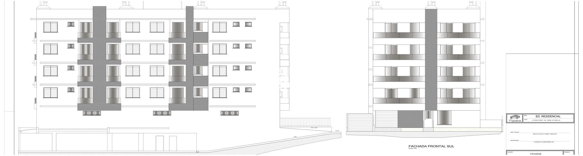
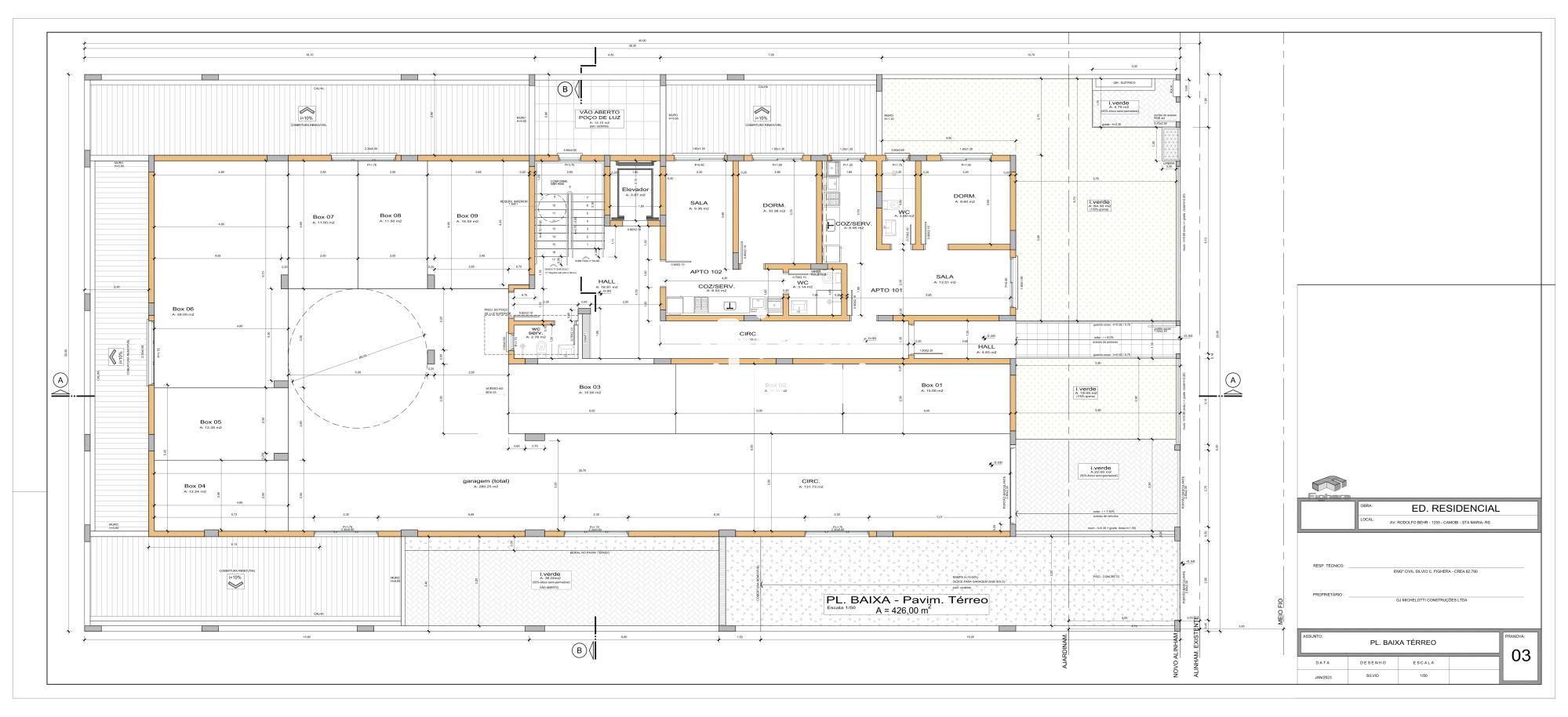
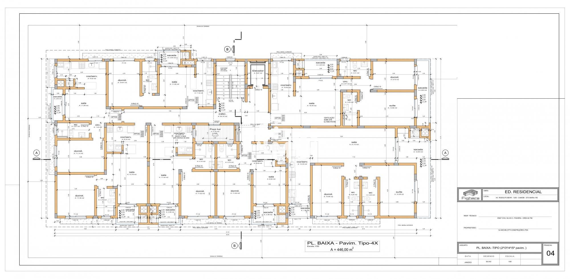
Apartamento 1 dormitório | Churrasqueira l Sacada
Camobi, Santa Maria, RS
Faça uma visita por vídeo ou presencial, basta combinar com o corretor quando ele entrar em contato.
Sobre esse Imóvel
Com 1 quarto, 1 banheiro e 1 vaga de garagem, este imóvel é ideal para quem busca um espaço aconchegante e funcional. Além disso, a sacada proporciona momentos relaxantes, a área de serviço e cozinha oferecem praticidade no dia a dia, e a churrasqueira é perfeita para reunir amigos e familiares.
Localizado em um bairro tranquilo e de fácil acesso, este apartamento oferece o melhor em qualidade de vida. Com hidrômetro individual, interfone e sala de estar, todos os detalhes foram pensados para proporcionar comodidade e bem-estar.
Não perca a oportunidade de garantir seu futuro neste maravilhoso imóvel! Agende uma visita e venha conhecer de perto todas as vantagens de viver aqui. Seu novo lar está esperando por você! Entre em contato para mais informações e condições especiais.
Características
Tipo de Piso
Posição Solar
Posição
Confortos
Faça uma visita por vídeo ou presencial, basta combinar com o corretor quando ele entrar em contato.